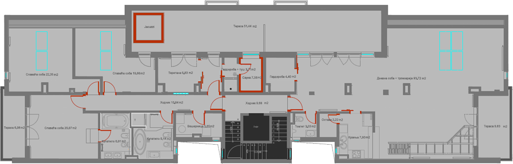
Апартман пентхаус у Зрмањској 1а, је топао простор са панорамним погледом на Аду Циганлију, Мост на Ади, Хиподром, центар Београда.Приступ стану је директно из лифта.
Јасно су одвојени спаваћи део са 3 собе, 2 купатила, собом за фитнес и сауном и дневни боравак са дневном собом са библиотеком, кухињом и трпезаријом, гардеробером и купатилом.
Инвеститор: Финвест д.о.о.
Површина: 300 м² БРГП
Укњижен и усељен: 2009. год.
